В чем состоит содержание проекта интерьера?
Первым этапом выполнения дизайн-проекта интерьера являются- предпроектные предложения.
От Заказчика дизайн-студия получает текущий план квартиры или фотографии текущего состояния объекта и пожелания дизайнеру на уровне идей. Наиболее эффективным, с точки зрения результата, является обсуждение прототипов отделки интерьера, которые можно отобрать из опубликованных в журналах интерьерных решений.
Остальное – дело дизайнера. Предварительная идея будет оформлена в виде одного или двух эскизов. Это так называемое предпроектное предложение.Делается это для того, чтобы оценить насколько Заказчик и дизайнер понимают друг друга.
После обсуждения предпроектного предложения, Заказчик выбирает вариант, который удовлетворяет его эстетические и функциональные требования.
Вторым этапом начинается разработка дизайн-проекта. Здесь закладывается фундамент всего дальнейшего хода работ:
разрабатывается и утверждается планировка и строительные чертежи,
прорисовываются перспективы,
составляется компьютерное моделирование будущего интерьера, еще до начало ремонта Вы сможете увидеть обстановку будущей квартиры (коттеджа), «походить» в виртуальном помещении и наглядно представить, как будут выглядеть те или иные детали интерьера, возможно ли сочетание тех или иных цветовых решений.
Описание и состав дизайн-проекта интерьера.
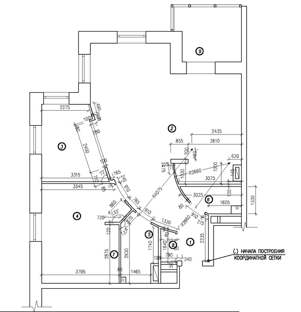
Обмерный чертеж – это план до реконструкции. Дизайнер выезжает на объект и делает замеры, по которым вычерчивает план с фактическими размерами. Необходимость этого чертежа обусловлена тем, что фактические размеры помещения отличаются от строительных планов, по которым возводилось здание.
Предварительные эскизы (проектные предложения) - еще до начала ремонта или строительства Заказчик получает информацию о внешнем виде помещений.
План после реконструкции – это план перепланировки, утвержденный Заказчиком. При работе над дизайн-проектом архитектор предлагает различные варианты перепланировок, обсуждает их с заказчиком, вносит необходимые изменения и корректировки, и в результате получается окончательный вариант «плана после реконструкции» на основе которого выполняются все последующие чертежи.
План демонтажа – все сносимые стены и перегородки.
План монтажа

Все вновь возводимые стены и перегородки.
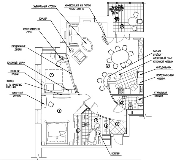
План с расстановкой мебели

На плане после реконструкции указываются места расположения мебели. Отдельно делается спецификация мебели.
План пола с учетом напольного покрытия

На плане после реконструкции показано в каких помещениях какое напольное покрытие (например: в кухне - керамическая плитка, в гостиной – массивная доска и т.п.), начало раскладки, высота подиумов (если они есть), линии стыковок различных видов напольных покрытий (например: керамогранита и паркета).
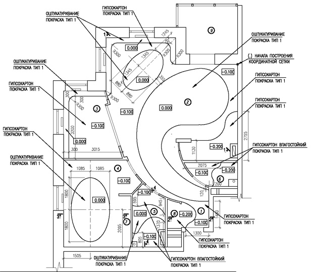
План потолка.

На этом плане показано: где используются подвесные или натяжные конструкции, их конфигурация, высота потолка. Обязательно даются разрезы потолка.
План освещения
На плане потолка указываются осветительные приборы с точными привязками и перечнем типов используемых светильников. Также указываются настенные светильники.
План выключателей
На плане освещения указывается какой выключатель что включает. Особенно важно для помещений с многоуровневым освещением.
План установки электротехнических изделий и электроарматуры
Это места расположения розеток, электровыводов и выключателей, с указанием высот и предназначения. (Например: на кухне электровывод для вытяжки, розетка для духового шкафа и т.п.)
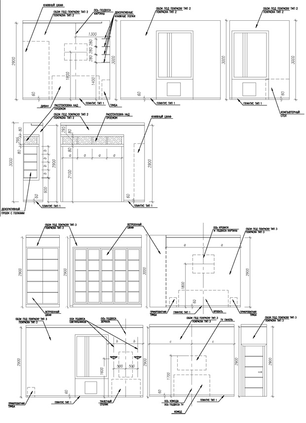
Виды и развертки внутренней поверхности стен
На этих чертежах показываются декоративные перегородки, ниши, подсветки, расположение мебели вдоль стен, т.е. то, что невозможно увидеть на планах сверху.
Разработка декоративных элементов интерьера- декоративные перегородки, барные стойки, авторская мебель.
Ведомость отделки

Это сводная таблица по объемам ремонтно-строительных работ по всему помещению. На основе ведомости отделки быстро и легко считается смета.
Визуализация



3D изображение будущего интерьера. Делается по всем основным помещениям по желанию Заказчика.
Дизайнер, исходя из общей концепции интерьера, предлагает Заказчику несколько вариантов отделки, мебели (подробный перечень подборов см. ниже). Работа ведется сначала по каталогам, потом архитектор выезжает с заказчиком в салоны, фирмы-поставщики. В спецификации указывается: модель, фирма-производитель, количество, цена, адрес и телефон фирмы-поставщика.
- Подбор отделочных материалов
- Подбор дверей
- Подбор сантехнического оборудования
- Подбор осветительных приборов
- Подбор электротехнических изделий
- Подбор кухонной мебели
- Подбор мягкой и корпусной мебели
- Подбор аксессуаров (ковры, часы и т.д.)
- Подбор текстиля (декор окна, ковры и т.д.)
- Рекомендации по подбору бытовой техники
Дополнительные услуги (выполняются смежными организациями)
Электропроект – расчет потребляемой мощности, принципиальная схема электрощитка, трассировки розеточных групп, электроосвещения, слаботочных сетей.
Проект вентиляции и кондиционирования – расчет объема кондиционируемых помещений, определение количества наружных и внутренних блоков сплит-систем
Проект водоснабжения и канализации – аксонометрическая схема разводки канализации и водоснабжения.
Аксонометрическая схема водоснабжения и канализации

