О проектах бестселлерах
Архитектура — жанр, который всегда адекватно показывает присущие времени представления о комфорте, эстетике, престиже и функциональности дома.
Попробуем проанализировать какие проектные и технологические решения, предлагаемые в области архитектуры, сегодня более всего востребованы в сфере частного домостроения?
На сегодняшний день идет стремительное развитие рынка готовых проектов. Большое количество людей, мечтающих построить дом своей мечты, предпочитают готовые проекты, выбор которых весьма разнообразен. Однако, несмотря на великое множество проектов, иногда кардинально отличающихся друг от друга, а также разницу во вкусах самих покупателей, во всех сегментах рынка частного домостроения выделяются коттеджи наиболее популярные – это, так называемые, проекты-бестселлеры. Бестселлер (от англ. best seller — «хорошо продаваемый») — проект - лидер продаж. Термин бестселлер не определяет какого-то конкретного уровня продаж или качества продукта, он просто говорит о большой популярности, как, например, термин блокбастер о фильмах или термин хит о музыкальных произведениях.
Несмотря на то, что как говорится в поговорке «на вкус и цвет товарища нет», тем не менее, практически в любой сфере деятельности найдутся примеры совпадения предпочтений людей с совершенно разными интересами. Такие бестселлеры можно найти и на рынке готовых проектов загородных домов.
Если попытаться проанализировать наиболее яркие характеристики проектов – лидеров продаж, то можно прийти к некому общему знаменателю, который объединяет в себе основные параметры дома, подходящего большинству покупателей.
На сегодняшний день наиболее востребованы компактные, экологичные, энергоэффективные, простые в строительстве и требующие минимального обслуживания коттеджи. Основные тенденции качества жизни 21 века - сокращение проектируемой площади строения, повышенное внимание к вопросам энергосбережения и экологичности применяемых материалов . Проектирование современного дома должно стремится к тому, чтобы им соответствовать . Все параметры, связанные с качеством будущего жилья закладываются уже на стадии проектирования. Причем, если в сегменте демократичных домов эти требования обусловлены в первую очередь соображениями экономии, то для объектов бизнес-класса это означает минимум привлекаемого к обслуживанию и эксплуатации коттеджа персонала. Современные инженерные и охранные системы позволяют свести к минимуму зависимость от «человеческого фактора» в лице нетрезвого сантехника, заснувшего сторожа или недобросовестного дворника.
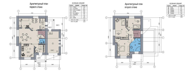
В любом доме, вне зависимости от габаритов, все должно быть эргономично и выверено до мелочей: правильно вписанные лестницы, сан-узлы (предполагается, что они есть и на первом, и на втором этаже). Наиболее востребованный проект это дом с мансардой, в которой находится «приватная» зона (спальни для всех членов семьи) и открытым планировочным пространством основного (первого) этажа: в нем могут располагаться гостиная, обособленная кухня, хозяйственные помещения. Такая планировка предполагает минимум перегородок и обособленных помещений. При проектировании кровли особое преимущество имеют логичные решения, с простой геометрией, с грамотной организацией внутреннего пространства для устройства жилой мансарды. Кровля должна быть качественно утеплена ,что актуально и зимой, и жарким летом, и в ней не должно быть неэксплуатируемых закоулков. Кроме того, такая кровля легко обслуживается.
Массивный цокольный этаж с хозяйственными помещениями (главным из которых когда-то была котельная), а также встроенный гараж ушли в прошлое. Гараж уступил место пристроенному к дому навесу для автомобиля, из-под которого также можно войти в дом (к слову, коттеджи, не имеющие гаража вообще, сегодня также не редкость). Сегодня мало кто из представителей среднего класса нуждается в личной автомастерской, а современное отопительное оборудование, как правило, уже не требует отдельного помещения под котельную. Тем не менее, у современного дома обязательно должно быть просторное обособленное помещение для хранения садовой и дачной мебели и техники, коей у сегодняшнего домовладельца — великое множество: от бензокосилок до квадроциклов.
Предпочтениями заказчика пользуются проекты коттеджей с оптимальным сочетанием красоты дизайна и функциональностью. Планировка дома должна включать в себя наличие всех необходимых помещений умеренной компактности. Наиболее привлекательным архитектурно-планировочным решением заказчиков являются дома без лишних помещений, а также вычурных пространств. Все помещения в доме должны быть максимально функциональными и комфортными. Особенное внимание уделяется помещениям столовой-гостиной, там, где собирается вся семья. Они должны быть просторны, комфортны и максимально открыты естественному свету. Здесь целесообразно обогатить планировку комнат, добавив эркеры, которые вдобавок послужат украшением фасада. Санузлы проектируются на каждом этаже, чтобы не приходилось лишний раз спускаться из спальни со второго уровня на первый.
Среднестатистический заказчик в наши дни выбирает не самые дешевые, но оправданные по затратам на реализацию проекты. Чаще всего покупатели предпочитают строить дома меньшей этажности на больших пятнах застройки. Гараж все чаще выносится за стены дома, общая площадь и этажность оптимизируется исходя из состава семьи и наличия пространства для гостей. При этом если во главу угла при выборе количественных характеристик проекта ставится рациональность, то на удобствах почти никто не экономит.
Как за рубежом (например, в США и Европе), где рынок готовых проектов хорошо развит, так и в России, загородный дом должен иметь не только рациональное и привлекательное архитектурно-планировочное решение, в котором функционализм не принесен в жертву красоте, но и, прежде всего, являться ликвидным объектом недвижимости.
Предпочтения в стилях весьма разнообразны. Кто-то предпочитает “классику”, кому-то ближе современные тенденции, однако в любом варианте стилевое решение, как правило, лаконично.
Примеры проектов бестселлеров:





