Состав проекта
Для осуществления строительства на основании утвержденного Заказчиком Эскизного Проекта разрабатывается проектная документация, которая является программой действий для строительства, а также основанием для согласований с соответствующими государственными органами.
Комплект включает архитектурную, конструкторскую и инженерную части.
К чертежам прилагается пояснительная записка, которая включает технико-экономические показатели: площадь застройки, жилую и общую площадь, объем дома, количество этажей и жилых комнат, краткое описание систем инженерных сетей (отопление, водоснабжение и канализация, электроснабжение, охранные сигнализации). В записке также дается базовая информация о конструктивном решении дома, строительных и отделочных материалах.
Важной частью проекта являются спецификации столярных изделий — схемы всех дверей и окон, которые планируется установить в доме, с размерами и техническими характеристиками.
Подробно о комплекте чертежей, необходимых для строительства:
1. Архитектурные часть
· Фасады дома

· Поэтажные планы

План первого этажа жилого загородного дома
· Размерные планы стен и перегородок
План стен и перегородок первого этажа загородного дома
· Планы проемов
План проемов первого этажа загородного дома.
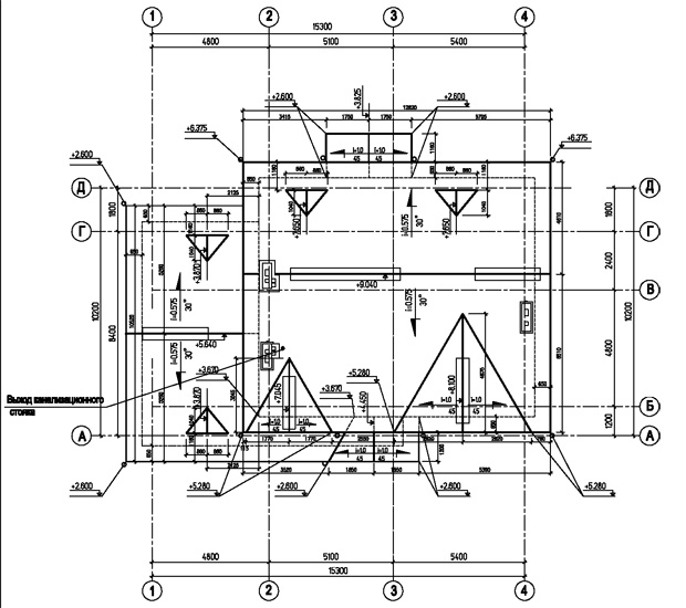
· План кровли
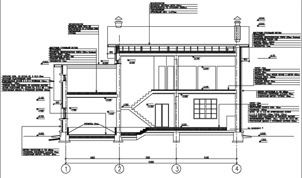
· Основные разрезы
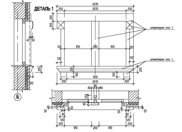
· Узлы или детали
· Сечения вентиляционных каналов

Паспорт проекта – необходим для прохождения процедуры согласования проектной документации и получения разрешения на строительство в местных органах власти.
В его состав входят:
- общие данные по проекту – пояснительная записка;
- поэтажные планы;
- фасады;
- один разрез.
В паспорт вкладывается копия лицензии и все страницы заверяются печатью и подписью разработчика проекта..
2. Конструктивная часть
На основании архитектурного проекта разрабатываются рабочие чертежи конструктивной части, делаются расчеты конструкций на прочность и устойчивость. Например, на архитектурных планах дома дается информация о материале покрытия в помещении, а на конструкторских чертежах — схема раскладки плит перекрытия, места, где выполняются монолитные участки и где элементы конструкций армируются. По конструктивным чертежам заказываются материалы и ведутся работы на стройплощадке.
Конструктивная часть включает:
- Техническое описание конструкторской части
- Чертежи фундаментов
- Чертежи раскладки перекрытий
- Чертежи перемычек оконных и дверных проемов
- Чертежи стропильной системы
- Cпецификации строительных материалов
3. Инженерный раздел
Инженерно-техническую документацию выполняют различные специалисты: по отоплению и вентиляции (комплект ОВ); водоснабжению и канализации (комплект ВК); газоснабжению (комплект ГС); электроснабжению и слаботочным сетям (комплект ЭС). Она включает информацию о составе и размещении элементов инженерного оборудования (схемы, расчеты, спецификации), о мощности и о путях подключения — разводке сетей. Отдельными разделами выполняются проекты охранных систем и сигнализации или наружного освещения.
Что такое смета?
Для того чтобы иметь представление, что и в каких объемах предстоит сделать и в какую сумму это выльется, составляют смету. Ее выполняет подрядчик, который будет осуществлять строительство. Сметная документация включает поэтапный перечень всех видов работ, их объем и стоимость; необходимые для выполнения работ материалы, их количество и стоимость. Чем подробнее составлена смета, тем удобнее ею пользоваться.
Сметная документация позволяет заказчику, который ее утверждает, сравнить указанные расценки с рыночными (стоимость материалов и работ), в случае необходимости оптимизировать расходы (например, заменить дорогостоящие материалы на более дешевые).

