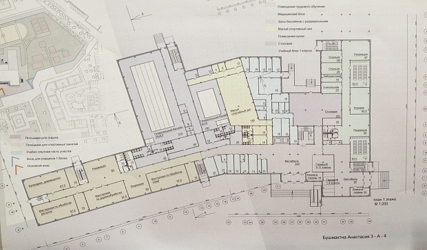
Школа на 550 уч. Эскиз 2015г.
АРХИТЕКТУРА. РАЗНОЕ
ТЕХНОЛОГИИ
СТРОИТЕЛЬНЫЕ
МАТЕРИАЛЫ
КУРСОВОЕ ПРОЕКТИРОВАНИЕ
НОРМЫ,
СНиПы,
ЛИТЕРАТУРА
МАГИСТРАТУРА
УЗЛЫ И ДЕТАЛИ
СМОТРЫ ПРОЕКТОВ
Главная
Архитектура. Разное
Магистратура
Строительные технологии
Строительные материалы
Курсовое проектирование
Положения о курсовом, дипломном проекти- ровании. магистратуре АФ
АП-860. программа проф-перепод-готовки
Гранты СПбГАСУ
Запись на курс в системе MOODLE
2 КУРС. Билеты по ТИПОЛОГИИ
Лекционные курсы
Билеты итоговой государст венной аттестации
Архитектурные клаузуры
Архитектурные макеты
Оформление проекта
Дипломный проект
2 КУРС
3 КУРС
4 КУРС
1. Проект объекта городского уровня (Квартал)
2. Проект общественного здания зально-ячеистой структуры (школа)
Школа на 550 уч. Примеры проектов 2015г.
2.Проект общественного здания зально-ячеистой структуры (ДОО)
3. Проект здания зрелищного назначения
3. ПРОЕКТ ОБЩЕСТВЕННОГО ЗДАНИЯ СПОРТИВНОГО НАЗАНАЧЕНИЯ (ФОК)
4. Проект интерьера общественного здания
4. Проект интерьера общественного здания-ФОК-2020
-ПРОЕКТ РЕКОН СТРУКЦИИ КВАРТАЛА В ИСТОРИЧЕСКОМ РАЙОНЕ
Рабочее проектирование
Конкурс на интерьер кинотеатра. СТРОИМ-ВМЕСТЕ
4.2 Проект интерьера МФК-2022
4 КУРС ДАС
5 КУРС
3D-ПЕЧАТЬ. Компьютерное проектирование ч.2
ПРАКТИКИ
5 КУРС ДАС
ПОРТФОЛИО СТУДЕНТА
Нормы, СНиПы, Литература
Узлы и детали
Смотры проектов
Инженерное оборудование
Комплектация интерьера
Отделочные материалы
Современные проекты
Главная
/
Курсовое проектирование
/
4 КУРС
/
2. Проект общественного здания зально-ячеистой структуры (школа)
/
Школа на 550 уч. Примеры проектов 2015г.
Школа на 550 уч. Эскиз 2015г.
реклама
Архитектурные проекты
Многолетний опыт