Проектные материалы к проекту блокированного дома
АРХИТЕКТУРА. РАЗНОЕ
ТЕХНОЛОГИИ
СТРОИТЕЛЬНЫЕ
МАТЕРИАЛЫ
КУРСОВОЕ ПРОЕКТИРОВАНИЕ
НОРМЫ,
СНиПы,
ЛИТЕРАТУРА
МАГИСТРАТУРА
УЗЛЫ И ДЕТАЛИ
СМОТРЫ ПРОЕКТОВ
Главная
Архитектура. Разное
Магистратура
Строительные технологии
Строительные материалы
Курсовое проектирование
Положения о курсовом, дипломном проекти- ровании. магистратуре АФ
АП-860. программа проф-перепод-готовки
Гранты СПбГАСУ
Запись на курс в системе MOODLE
2 КУРС. Билеты по ТИПОЛОГИИ
Лекционные курсы
Билеты итоговой государст венной аттестации
Архитектурные клаузуры
Архитектурные макеты
Оформление проекта
Дипломный проект
2 КУРС
1. Дизайн-проект торгово-выставочного павильона
2. Проект индивидуального жилого дома
3. Проект жилой группы блокированных малоэтажных домов
Проект группы блокированных домов. Примеры работ 2016 года
4. Проект реконструкции малого исторического объекта
4. Многоквартирный жилой дом в исторической застройке-2020
4. Многоквартирный жилой дом в исторической застройке
4. Проект реконструкции малого исторического объекта 2019
вторая проектная практика
---VELUX-КОНКУРС---
4.2 Проект реконструкции-2022
3 КУРС
4 КУРС
4 КУРС ДАС
5 КУРС
3D-ПЕЧАТЬ. Компьютерное проектирование ч.2
ПРАКТИКИ
5 КУРС ДАС
ПОРТФОЛИО СТУДЕНТА
Нормы, СНиПы, Литература
Узлы и детали
Смотры проектов
Инженерное оборудование
Комплектация интерьера
Отделочные материалы
Современные проекты
Главная
/
Курсовое проектирование
/
2 КУРС
/
3. Проект жилой группы блокированных малоэтажных домов
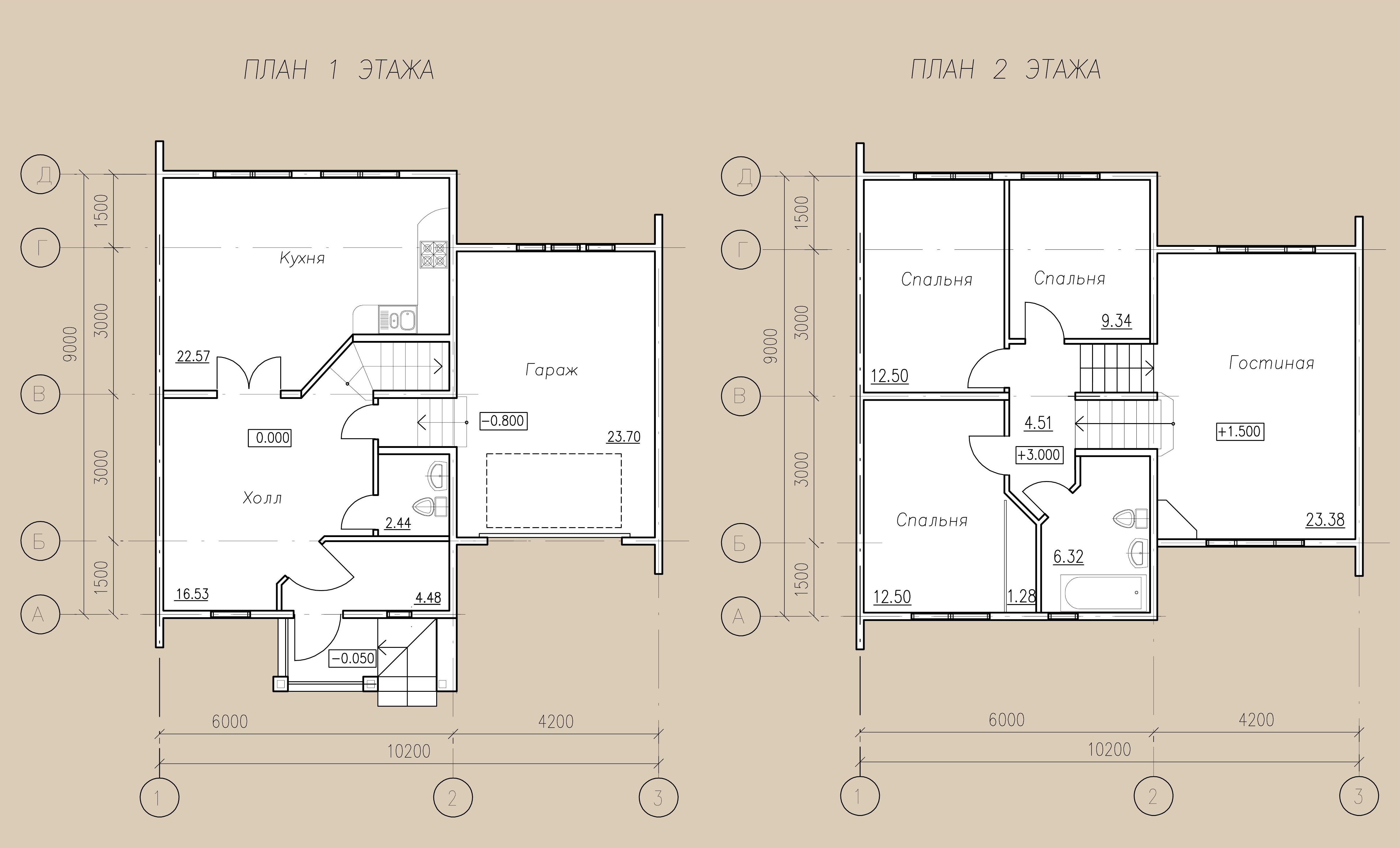
Проектные материалы к проекту блокированного дома
реклама
Архитектурные проекты
Многолетний опыт