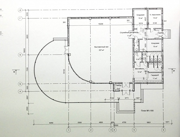
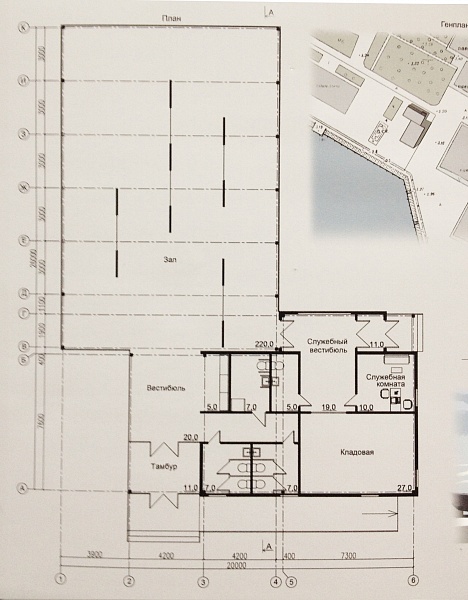
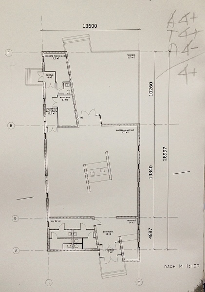
Торгово-выставочный павильон. Примеры подачи 2015г.
АРХИТЕКТУРА. РАЗНОЕ
ТЕХНОЛОГИИ
СТРОИТЕЛЬНЫЕ
МАТЕРИАЛЫ
КУРСОВОЕ ПРОЕКТИРОВАНИЕ
НОРМЫ,
СНиПы,
ЛИТЕРАТУРА
МАГИСТРАТУРА
УЗЛЫ И ДЕТАЛИ
СМОТРЫ ПРОЕКТОВ
Главная
Архитектура. Разное
Магистратура
Строительные технологии
Строительные материалы
Курсовое проектирование
Положения о курсовом, дипломном проекти- ровании. магистратуре АФ
АП-860. программа проф-перепод-готовки
Гранты СПбГАСУ
Запись на курс в системе MOODLE
2 КУРС. Билеты по ТИПОЛОГИИ
Лекционные курсы
Билеты итоговой государст венной аттестации
Архитектурные клаузуры
Архитектурные макеты
Оформление проекта
Дипломный проект
2 КУРС
1. Дизайн-проект торгово-выставочного павильона
Дизайн-проект торгово-выставочного павильона 2017г
2. Проект индивидуального жилого дома
3. Проект жилой группы блокированных малоэтажных домов
4. Проект реконструкции малого исторического объекта
4. Многоквартирный жилой дом в исторической застройке-2020
4. Многоквартирный жилой дом в исторической застройке
4. Проект реконструкции малого исторического объекта 2019
вторая проектная практика
---VELUX-КОНКУРС---
4.2 Проект реконструкции-2022
3 КУРС
4 КУРС
4 КУРС ДАС
5 КУРС
3D-ПЕЧАТЬ. Компьютерное проектирование ч.2
ПРАКТИКИ
5 КУРС ДАС
ПОРТФОЛИО СТУДЕНТА
Нормы, СНиПы, Литература
Узлы и детали
Смотры проектов
Инженерное оборудование
Комплектация интерьера
Отделочные материалы
Современные проекты
Главная
/
Курсовое проектирование
/
2 КУРС
/
1. Дизайн-проект торгово-выставочного павильона
Торгово-выставочный павильон. Примеры подачи 2015г.
реклама
Архитектурные проекты
Многолетний опыт